
The Street, Horham, IP21 5DX
Contact Us
Eye
5 Castle Street
Eye
Suffolk
IP23 7AN
Tel: 01379 871 563
property@harrisonedge.com
Property Summary
Property Details
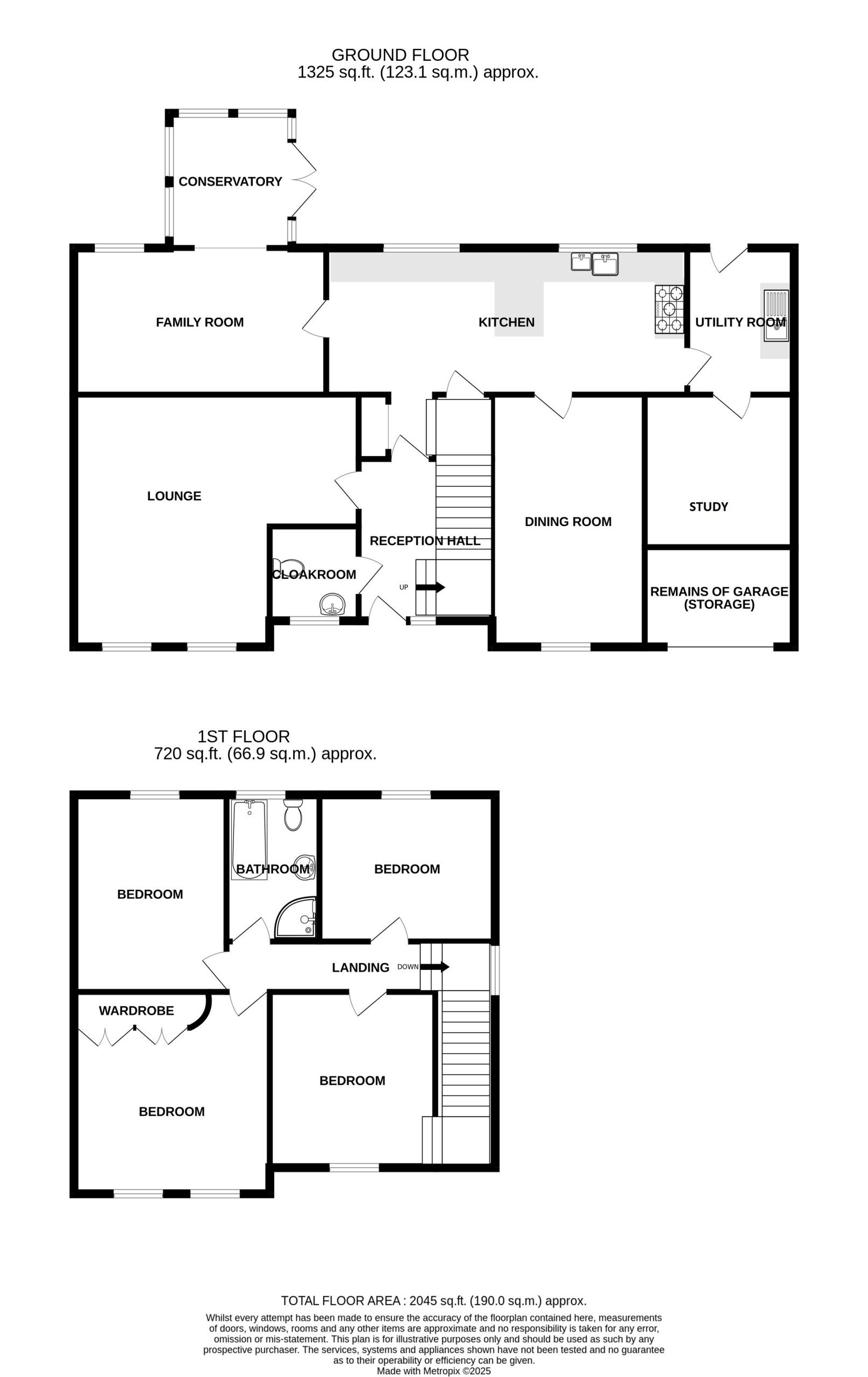
Silverbirch is believed to originally have been constructed in the late 1970's. The current owners towards the start of their ownership in the early 2000's adapted and extended the ground floor living space and have created a particularly roomy home backing onto a large rear garden which would be brilliant for children. Being particularly well presented, the accommodation comprises lounge, dining room and family room plus conservatory along with a study, utility room and large, extensively fitted kitchen. Upstairs, four well proportioned bedrooms can be found along with a comfortable sized bathroom complete with separate shower enclosure. Windows are double glazed and oil fired radiator installed throughout.
Entrance Porch
With glazed double opening doors to an initial space and inner 'Front door' with decorative glass panels.
Reception Hall
A welcoming space with stairs set to one side rising to the first floor and with storage cupboard beneath. A quality looking woodblock floor strikes a good note and white panel doors lead off. Double radiator with thermostatic radiator valve.
Cloakroom
With suite comprising wash basin and low level wc all set off by tiled walls, floor and a vertical railed radiator in a stainless finish. PVCu double glazed window to the front elevation.
Lounge 19 x 5.1m
Maximum. A well proportioned room with period style chimneypiece and fireplace with a contemporary twist, serving as a focal point to the room. Twin PVCu double glazed windows provide an outlook to the front. Coved. Two double radiators each with thermostatic radiator valves. Television point etc. Dimmer switch.
Kitchen 7.32m x 2.95m
A light, bright and wide kitchen extensively fitted across the rear of the house incorporating a peninsular breakfast bar midway. A Breakfast/Dining space has been created to one corner complete with banquette seating on two sides complete with storage beneath. Two PVCu double glazed windows give great views across the large rear garden to the fields beyond and flood the kitchen on a sunny day with tremendous natural light. Woodblock worktop extends across a mix of cupboard and drawer storage options along with built-in appliances to include Bosch fridge and freezer, BWT water softener, Bosch dishwasher (not currently working) plus Bosch single oven and Bosch 5 ring LPG hob with brushed steel and glass chimney hood above. Pull-out spice jar racking. Under mounted stainless steel sink unit with three way mixer tap including Brita water filter. Additional features include vertical radiator with thermostatic valve; understairs shelved cupboard. and recessed storage area by hall door. The kitchen relates well with the Hall, Dining Room, Family Room and Utility/Study areas.
Family Room 5.13m x 2.97m
A further reception room combining with the Conservatory at the rear and laid with further notable woodblock flooring to match that within the hall. Fitted with vertical wall radiator, two uplighters plus two ceiling lights along with television point etc.
Conservatory 2.74m x 2.46m
The woodblock flooring continues into the Conservatory, of PVCu double glazed construction set on a blockwork plinth, under a shaded polycarbonate roof. French windows lead out to the paved terrace across the rear of the house. Double radiator with thermostatic valve.
Dining Room 5.1m x 2.84m
Again laid with woodblock flooring and with a PVCu double glazed window to the front elevation. Double radiator with thermostatic valve. Two ceiling lights. Coved ceiling.
Study 3.07m x 2.67m
Created from converting part of the garage and forming a useful and versatile domestic space complete with single radiator with thermostatic valve, tiled floor, ceiling spots and natural light from a 'sun pipe'.
Utility Room 2.17m x 2.97m
With outer PVCu double glazed door connecting to and from the garden and paved terrace. A corresponding window provides additional natural light. Fitted with further units to include a stainless steel single drainer sink unit with mixer tap along with plumbing and space for a washing machine. Upright fridge freezer space. A floor mounted Grant oil fired boiler supplies domestic hot water and radiators. Three wall cupboards. Walls and floor are tiled and ceiling coved.
First Floor Landing
Approached from the hallway and stairs the landing extends across the middle of the house lit from a first floor stairwell window. A drop down loft hatch provides access to the roof space via a fitted ladder. Single radiator with thermostatic valve.
Bedroom 1 4.1m x 4m
A lovely sized main bedroom with twin PVCu double glazed windows to the front elevation. A bank of wardrobes is fitted to one wall providing floor to ceiling storage. Singe radiator with thermostatic valve. Coved ceiling.
Bedroom 2 4.01m x 3.1m
With PVCu double glazed window to the rear with a view across the garden to the fields beyond. Single radiator with thermostatic valve. Coved ceiling.
Bedroom 3 3.43m x 3m
A third double room with PVCu double glazed window to the rear with matching view. Single radiator with thermostatic valve. Coved ceiling.
Bedroom 4 3.35m x 2.74m
With PVCu double glazed window to the front and an outlook across the front garden, driveway area to The Street. Single radiator with thermostatic valve. Coved ceiling.
Bathroom
Of good size and fitted with a suite comprising quadrant shower enclosure with Aqualisa shower installed; panelled bath; low level wc and pedestal wash basin. Walls are tiled along with each of the four walls and ceiling spots incorporated above. A recess houses a mirror fronted medicine cabinet. PVCu double glazed window to the rear. Vertical railed radiator in a stainless steel finish.
Gardens & Grounds
The plot extends to approximately 0.26 Acres (0.105 Hectares) (Source: Goview) backing onto open fields at the rear, to the South. Set nicely back from The Street, the gated access opens to a sizeable parking area which the owner claims will accommodate up to 10 varied cars - great for parties! The majority of the plot can be found beyond the house which is laid to lawn with a paved terrace across the rear of the house tying in well with the Conservatory and Utility access points. A further Sun Terrace has been created to the far end of the garden, by the fields across which a lovely view can be enjoyed across currently, traditionally cropped fields.
Garaging
The original Garage has been adapted to create the Study within the house but has retained space at the front. The up and over door reveals a storage space approximately 9' x 6' (2.75m x 1.85m) and has a cold water supply along with power and light fitted. Provision for further extending upwards has been considered and a capped off access the main foul drainage can be seen at one side.
Services
The vendor has confirmed that the property benefits from mains water, electricity and drainage. LPG used for the gas hob within the kitchen.
Mobile & Broadband
OfCom Mobile & Broadband Checker - paste the following link into your browser:
https://www.ofcom.org.uk/mobile-coverage-checker
https://checker.ofcom.org.uk/en-gb/broadband-coverage#pc=IP215DX&uprn=200003811178
Flood Risk
For Flood Risk information paste the following Link into your Browser:
https://check-long-term-flood-risk.service.gov.uk/risk#
Wayleaves & Easements
The property is sold subject to and with all the benefit of all wayleaves, covenants, easements and rights of way whether or not disclosed in these particulars.
Important Notice
These particulars do not form part of any offer or contract and should not be relied upon as statements or representations of fact. Harrison Edge has no authority to make or give in writing or verbally any representations or warranties in relation to the property. Any areas, measurements or distances are approximate. The text, photographs and plans are for guidance only and are not necessarily comprehensive. No assumptions should be made that the property has all the necessary planning, building regulation or other consents. Harrison Edge have not carried out a survey, nor tested the services, appliances or facilities. Purchasers must satisfy themselves by inspection or otherwise. In the interest of Health & Safety, please ensure that you take due care when inspecting any property.
Postal Address
Silverbirch, The Street, Horham, Eye, IP21 5DX
Local Authority
Mid Suffolk District Council, Endeavour House, 8 Russell Road, Ipswich IP1 2BX. Telephone: 0300 123 4000
Council Tax
The property has been placed in Tax Band E.
Tenure & Possession
The property is for sale freehold with vacant possession upon completion.
Fixtures & Fittings
All items normally designated as fixtures & fittings are specifically excluded from the sale unless mentioned in these particulars.
Viewing
By prior telephone appointment with the vendors agent Harrison Edge T: +44 (0)1379 871 563











































































