
Cross Street, Hoxne, IP21 5AH
Contact Us
Eye
5 Castle Street
Eye
Suffolk
IP23 7AN
Tel: 01379 871 563
property@harrisonedge.com
Property Summary
Property Details
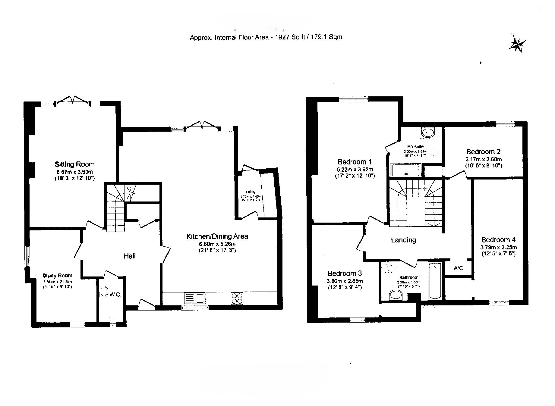
This individual house was designed and built to the owners requirements and much thought and detail went into the design and execution. Cottage style external elements make for a pretty frontage and internally the combination of rooms work well together and vary from many of the more standard detached houses. A welcoming hall serves as a hub to the ground floor spaces which include a large social kitchen dining space, lounge, study and cloakroom. The kitchen also features a utility room at the rear. Upstairs, four bedrooms include a large master bedroom with en suite along with three well balanced additional rooms. As you would expect, windows are double glazed and within timber frames but unlike many similar properties, Cherry Tree House is lucky in having underflooring throughout both ground and first floors. Furthermore, for a relatively new house there is a notable amount of built-in storage upstairs. The house is currently Let with the tenancy expected to come to an end in April 2026 after which there will be no onward chain.
Entrance Hall
Approached from the outer canopy porch to enter a welcoming oak floored hallway in the centre of the ground floor spaces. Stairs lead up to the first floor and incorporate a cupboard below. Oak doors lead off.
Cloakroom
Featuring travertine tiling and suite comprising wash basin and low level wc. Window to the front elevation.
Lounge 5.54m x 3.89m
plus a versatile shelved recess alongside the chimneybreast. The fireplace was constructed with a woodburner in mind and to date has been unused. A dedicated table lamp lighting circuit is installed. Oak boards extend from the hallway throughout this good size reception room which has French doors leading out to the garden. Television and telephone points. Recessed ceiling spotlights.
Study 3.5m x 2.34m
with a further shelved recess, oak boarded floor and featuring windows to both front and side elevations.
Kitchen 5.23m x 2.64m
plus 14'4 x 12'9 (4.37m x 3.9m) A lovely sized social kitchen dining space with a central core and extensions either side. The oak boards continue through and add to the overall character and kitchen units in their sleek gloss finish set beneath wood block worktop. Storage options include a mix of cupboards and drawers, plumbing for dishwasher, stainless steel single drainer sink unit with drainer bowl and mixer tap. Electric cooker point with chimney hood above and splashback behind. A wide 4-pane window provides good southerly natural light and outlook to the front. To the rear of the space the room widens to include a further shelved recess and four glazed panels including a door to the rear garden.
Utility Room 1.96m x 1.6m average
With practical tiled floor and oak panel glazed outer door. This slightly irregular shaped room houses plumbing for washing machine and Grant oil fired boiler supplying domestic hot water and radiators.
First Floor Landing
With gallery balustrading and a continuation of the oak floor and door combination. Access to loft space. Built-in airing cupboard with hot water tank and immersion heater.
Bedroom 1 5.2m x 4.24m
A lovely big oak floored room with 4-pane window to the rear overlooking the garden. Character from partly vaulted ceiling within the roofline. Television point.
En Suite Shower Room
Featuring travertine tiling, double shower enclosure, low level wc and vanity wash basin. Vertical heated railed towel rail. Velux window.
Bedroom 2 3.8m x 3.2m
With roofline character, oak floor and window to the front elevation. Useful built-in storage space.
Bedroom 3 3.18m x 2.67m
Featuring a shelved recess, oak floor and window to the rear elevation.
Bedroom 4 3.78m x 2.26m
With oak floor, built-in cupboard and window to the front elevation.
Bathroom
Continuing the travertine theme and with suite comprising panelled bath with shower over, wash basin and low level wc. Heated towel rail. Velux window.
Outside
The house is set back from the road behind an off road parking area interspersed with planted beds. The house is notable for its ornamented barge boards and the pretty gable front which continues to the right hand side with matching gable to the STORE which has double doors and LOG STORE alongside. The rear garden is laid to lawnwith a paved patio across the rear of the house.
Services
The vendor has confirmed that the property benefits from mains water, electricity & drainage.
Mobile & Broadband
OfCom Mobile & Broadband Checker - paste the following link into your browser:
https://checker.ofcom.org.uk/
Flood Risk
For Flood Risk information paste the following Link into your Browser:
https://www.gov.uk/check-long-term-flood-risk
Tenure & Possession
The property is for sale freehold with vacant possession upon completion.
Fixtures & Fittings
All items normally designated as fixtures & fittings are specifically excluded from the sale unless mentioned in these particulars.
Wayleaves & Easements
The property is sold subject to and with all the benefit of all wayleaves, covenants, easements and rights of way whether or not disclosed in these particulars.
Important Notice
These particulars do not form part of any offer or contract and should not be relied upon as statements or representations of fact. Harrison Edge has no authority to make or give in writing or verbally any representations or warranties in relation to the property. Any areas, measurements or distances are approximate. The text, photographs and plans are for guidance only and are not necessarily comprehensive. No assumptions should be made that the property has all the necessary planning, building regulation or other consents. Harrison Edge have not carried out a survey, nor tested the services, appliances or facilities. Purchasers must satisfy themselves by inspection or otherwise. In the interest of Health & Safety, please ensure that you take due care when inspecting any property.
Postal Address
Cherry Tree House, Cross Street, Hoxne, IP21 5AH
Local Authority
Mid Suffolk District Council, Endeavour House, 8 Russell Road, Ipswich IP1 2BX. Telephone: 0300 123 4000
Council Tax Band
The property has been placed in Tax Band D.
Identification Verification
The Money Laundering, Terrorist Financing and Transfer of Funds (Information on the Payer) Regulations 2017 require all Estate Agents to obtain sellers’ and buyers’ identity. A fee of £30 inclusive of VAT applies to each Vendor/Purchaser via our preferred ID Verification partner, Verify365.
Viewing
By prior telephone appointment with the vendors agent Harrison Edge T: +44 (0)1379 871 563







































































