
Gaye Crescent, Eye, IP23 7BW
Contact Us
Eye
5 Castle Street
Eye
Suffolk
IP23 7AN
Tel: 01379 871 563
property@harrisonedge.com
Property Summary
Property Details
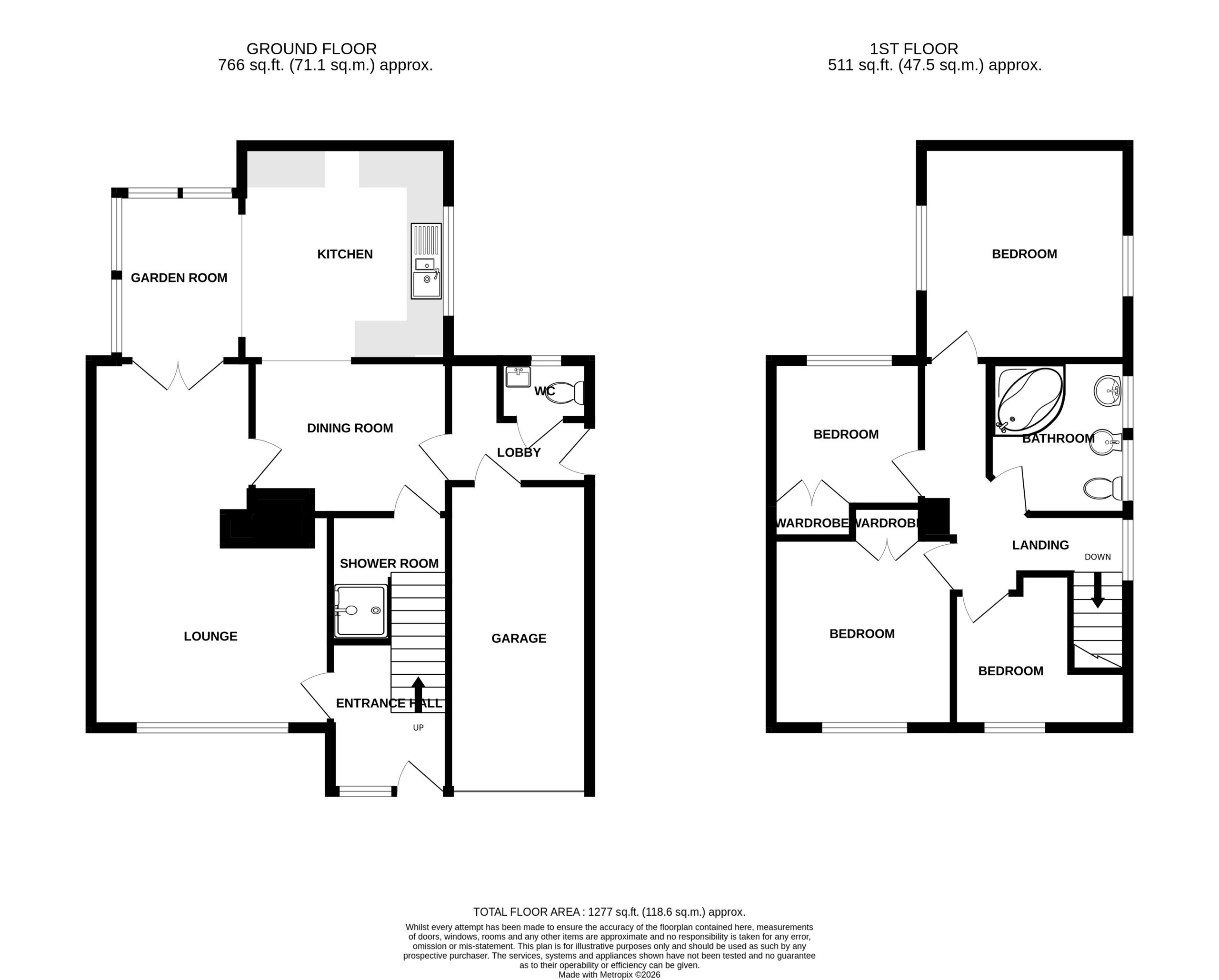
Built towards the end of the 1960's this detached house now offers extended two storey living space with 4 bedrooms. Likewise downstairs, the rear extension has created a multi room layout to include lounge, garden room, dining room and a kitchen comfortably accommodating a table and chairs. Windows are double glazed and oil fired radiator heating installed and mains gas, should it be needed can be found in the road but is not connected. This good value family home has been owned since the early 1980's proving its worth as a much loved family home over those years. We expect new owners to carry out certain refurbishments. These will no doubt include kitchen and bathroom spaces for example. The merits of this house though should not be underestimated as a long term family home.
Entrance Hall
Approached via a double glazed outer door opening to an initial space to meet & greet. Stairs rise to the first floor with the stairwell benefitting from a stairwell window at first floor adding extra natural light. An inner door leads through to the main reception room. Double radiator.
Lounge 6.05m x 4.1m
Measured at its widest point, narrowing towards the rear as illustrated by the floorplan. A picture window provides an outlook to the front and a painted chimneypiece and hearth creates a focal point of the central chimneybreast. Double bi-fold doors lead through to the Garden Room along with an additional door leading through to the Dining Room. Together, the spaces combine to create a circular flow between them. 2 double radiators.
Garden Room 2.87m x 2.08m
An earlier Conservatory has been transformed by the addition of a roof covering creating a connected reception room space between the Lounge and Kitchen.
Dining Room 3.25m x 2.54m
Dining Room or Breakfast Room depending on personal choice and open to the Kitchen. A stable type door leads to the side lobby. A further door opens to an understairs space adapted to now include a SHOWER CUBICLE along with storage.
Kitchen 3.53m x 3.4m
Fitted with a good range of limed oak fronted units beneath more recent quartz style worktop extending around three sections plus a Breakfast Bar stretching into the Dining Room. Cupboard and drawer storage options combine with plumbing for dishwasher, space for an electric cooker with concealed extractor hood above, wine storage, wall cupboards with fitted cornice and pelmet detail, gallery railed shelved corners and ceramic single drainer sink unit with drainer bowl and mixer tap. Good natural light as a result of a good size window plus light from the adjacent Garden Room.
Side Lobby
A useful Utility space with plumbing for washing machine, the current owners stacking a dryer on top. A door leads outside along with a further door into the SINGLE GARAGE.
Cloakroom
With low level wc, wash handbasin, electric heated towel rail. Window.
First Floor Landing
The winding landing leads from the stairs to each of the four bedrooms plus bathroom. Well positioned is access to the loft space with drop down hatch, ladder and light installed.
Bedroom 1 3.6m x 3.43m
A double aspect room with windows either side. Electric panel heater. Dimmer switch.
Bedroom 2 3.12m x 3m
Built-in Airing Cupboard housing hot water storage tank with immersion heater. Window to the front. Single radiator.
Bedroom 3 2.51m x 2.36m
A 3rd double room and with built-in wardrobe cupboard storage. Single radiator. Television point. Window to the rear elevation.
Bedroom 4
With window to the front elevation along with a recess for storage extending above the stairwell. Single radiator.
Bathroom
Created by combining the original bathroom and a separate wc to make a roomy bathroom space. Consequently, the owners have been able to fit the space out with a corner bath , low level wc, bidet and pedestal wash basin. Two side windows provide good natural light. Single radiator. Shaver point.
Garage 5.05m x 2.4m
With up and over door at the front along with an internal door connecting with the main house via the Lobby. Power and light is connected.
Outside
Being on a corner, the house benefits from a wide open frontage bordered by the kerbed footpath. To the front of the garage is off road parking. Two side gates, one either side, lead to the rear and side garden space combining patios and grass along with planted borders and beds. A SUMMER HOUSE will remain. Outside lights. Oil storage tank. Oil fired boiler supplying domestic hot water and radiators.
Agents Note
Sadly the current owners suffered a cracked oil tank resulting in soil and building contamination in 2025. Rectification took place under an Insurance Claim via the NFU resulting in excavation and replacement of top soil and replacement of the main reception room concrete floor plus installation of new oil storage tank and oil supply pipework. Building Regulation Approval was granted for both elements dated 9th September 2025 & 17th December 2025 respectively.
Services
The vendor has confirmed that the property benefits from mains water, electricity and drainage. Mains gas is available within the road.
Mobile & Broadband
OfCom Mobile & Broadband Checker - paste the following link into your browser:
https://checker.ofcom.org.uk/
Flood Risk
For Flood Risk information paste the following Link into your Browser:
https://check-long-term-flood-risk.service.gov.uk/postcode
Wayleaves & Easements
The property is sold subject to and with all the benefit of all wayleaves, covenants, easements and rights of way whether or not disclosed in these particulars.
Important Notice
These particulars do not form part of any offer or contract and should not be relied upon as statements or representations of fact. Harrison Edge has no authority to make or give in writing or verbally any representations or warranties in relation to the property. Any areas, measurements or distances are approximate. The text, photographs and plans are for guidance only and are not necessarily comprehensive. No assumptions should be made that the property has all the necessary planning, building regulation or other consents. Harrison Edge have not carried out a survey, nor tested the services, appliances or facilities. Purchasers must satisfy themselves by inspection or otherwise. In the interest of Health & Safety, please ensure that you take due care when inspecting any property.
Postal Address
1 Gaye Crescent, Eye, IP23 7BW
Local Authority
Mid Suffolk District Council, Endeavour House, 8 Russell Road, Ipswich IP1 2BX. Telephone: 0300 123 4000
Council Tax
The property has been placed in Tax Band D.
Tenure & Possession
The property is for sale freehold with vacant possession upon completion.
Fixtures & Fittings
All items normally designated as fixtures & fittings are specifically excluded from the sale unless mentioned in these particulars.
Indentity Verification
The Money Laundering, Terrorist Financing and Transfer of Funds (Information on the Payer) Regulations 2017 require all Estate Agents to obtain sellers’ and buyers’ identity. A fee of £30 inclusive of VAT applies to each Vendor/Purchaser via our preferred ID Verification partner, Verify365.
Viewing
By prior telephone appointment with the vendors agent Harrison Edge T: +44 (0)1379 871 563







































































